空气换热箱
特点
内置空气热回收器,能够利用污风所携带的冷(热)量对新风进行预冷(热),有效地降低空调系统中的新风负荷。当新风量较大,其节能优势得以充分的体现。广泛用于游泳馆、购物中心、地下停车场等处。
KHQ-Z系列空气换热箱
性能参数表
|
型 号 |
额定风量(m3/h) |
热回收率(%) |
静压损失(Pa) |
重量(kg) |
|
KHQ-2Z |
20000 |
70 |
500 |
1250 |
|
KHQ-3Z |
30000 |
70 |
500 |
1850 |
|
KHQ-4Z |
40000 |
70 |
500 |
2450 |
|
KHQ-5Z |
50000 |
70 |
500 |
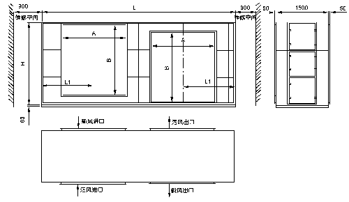
3050 | 外形尺寸图

|
型 号 |
L |
H |
L1 |
A |
B |
|
KHQ-2Z |
2800 |
2345 |
712 |
800 |
2000 |
|
KHQ-3Z |
3350 |
3200 |
850 |
1000 |
2850 |
|
KHQ-4Z |
4450 |
3200 |
1075 |
1500 |
2850 |
|
KHQ-5Z |
5550 |
3200 |
1400 |
2000 |
2850 | |
| |